伊丹市 昆陽南 新築一戸建 限定1区画 2380万円 お急ぎください!

| 間取り | 写真 | ||
![]() |
![]() |
||
| その他写真 | |||
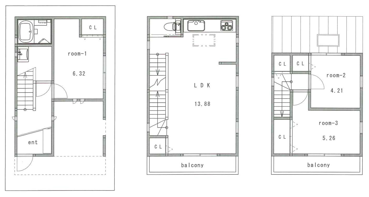
| 種別 | 間取り | 階数 | 建物面積 土地面積 |
築年数 | 価格 |
| 新築戸建 | 3LDK | 3階建 | 73.04㎡ 49.34㎡ |
新築につき未定 | 成約御礼 |
| 所在地 | 兵庫県伊丹市昆陽南5丁目 | |||
| 沿線・最寄駅 | 阪急伊丹線 伊丹駅 徒歩 8分 | |||
| 沿線・最寄駅2 | ||||
| 接道状況 | 南側公道約5mに間口約5.5m接道しています | |||
| 建物構造 | 木造 | 所在階 | ||
| 駐車場 | 有 | 総戸数 | ||
| 土地権利 | 所有権 | 管理費 | ||
| セットバック | 修繕積立金 | |||
| 都市計画 | 市街化区域 | 私道負担 | 無 | |
| 用途地域 | 第一種中高層 | 地目 | 宅地 | |
| 建ペイ率/容積率 | 60% / 200% | 地勢 | 平坦 | |
| 引き渡し | 現況 | |||
| 持ち分 | 取引態様 | 仲介 | ||
| 小学校 | 昆陽里小学校 | 中学校 | 松崎中学校 | |
| 設備 | ||||
| 備考 | ||||
| 物件コード | E000022 | |||


