神戸市 新築戸建 灘区赤坂通3丁目 限定1区画 北西角地

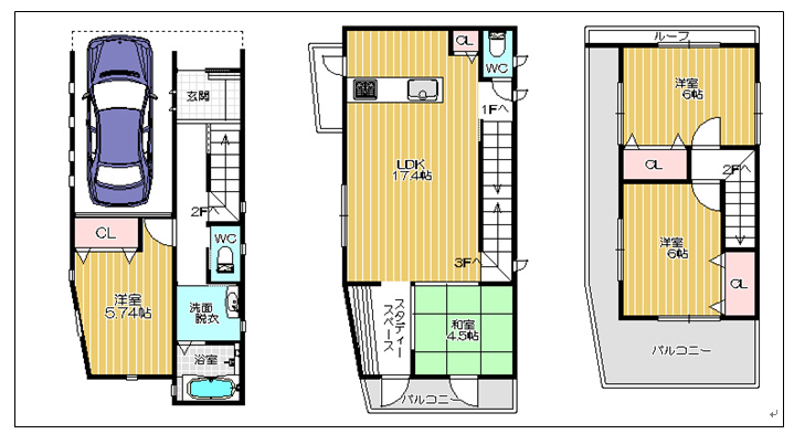
| 間取り | 写真 | ||
![]() |
![]() |
||
| その他写真 | |||
| 種別 | 間取り | 階数 | 建物面積 土地面積 |
築年数 | 価格 |
| 新築戸建 | 4LDK | 3階建 | 95.67㎡ 85.58㎡ |
成約御礼 |
| 所在地 | 兵庫県神戸市灘区赤坂通3丁目 | |||
| 沿線・最寄駅 | 阪急神戸線 王子公園駅 徒歩 15分 | |||
| 沿線・最寄駅2 | ||||
| 接道状況 | 北側公道6m 西側 3m | |||
| 建物構造 | 木造 | 所在階 | ||
| 駐車場 | 有 | 総戸数 | 1戸 | |
| 土地権利 | 所有権 | 管理費 | ||
| セットバック | 有 | 修繕積立金 | ||
| 都市計画 | 市街化区域 | 私道負担 | 有 22.80㎡ | |
| 用途地域 | 第一種中高層 | 地目 | 宅地 | |
| 建ペイ率/容積率 | 70% / 200% | 地勢 | 平坦 | |
| 引き渡し | 契約後4カ月 | 現況 | ||
| 持ち分 | 取引態様 | 専任 | ||
| 小学校 | 中学校 | |||
| 設備 | ペアガラス・食器洗乾燥機・浴室乾燥機・床暖房 | |||
| 備考 | セットバック後の有効面積62.78㎡ |
|||
| 物件コード | E000038 | |||


