伊丹市 新築戸建て 鴻池3丁目 4LDK 土地約30坪!

| 間取り | 写真 | ||
![]() |
![]() |
||
| その他写真 | |||
|
|||
| 種別 | 間取り | 階数 | 建物面積 土地面積 |
築年数 | 価格 |
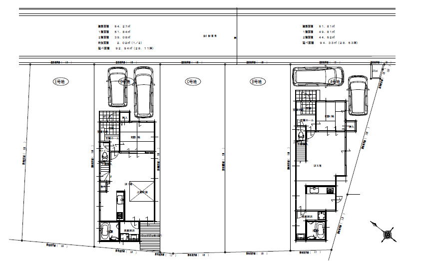
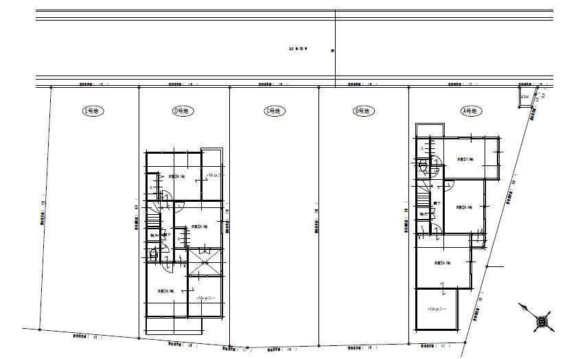
| 新築戸建 | 4LDK | 2階建 | 94.77~㎡ 100.01㎡~101.22㎡ |
新築 | 成約御礼 |
周辺地域には買い物施設も充実しています。
全5区画の新築戸建て。
| 所在地 | 伊丹市鴻池3丁目 | |||
| 沿線・最寄駅 | 阪急伊丹線 伊丹駅 バス 16分 | |||
| 沿線・最寄駅2 | ||||
| 接道状況 | ||||
| 建物構造 | 木造 | 所在階 | ||
| 駐車場 | 有 | 総戸数 | 5戸 | |
| 土地権利 | 所有権 | 管理費 | ||
| セットバック | 修繕積立金 | |||
| 都市計画 | 私道負担 | |||
| 用途地域 | 第一種中高層 | 地目 | 宅地 | |
| 建ペイ率/容積率 | 60% / 200% | 地勢 | ||
| 引き渡し | 相談 | 現況 | ||
| 持ち分 | 取引態様 | 専属専任 | ||
| 小学校 | 鴻池小学校 | 中学校 | 天王寺川中学校 | |
| 設備 | ||||
| 備考 | 駐車場2台分 |
|||
| 物件コード | E000053 | |||



