尼崎市 大島3丁目 新築戸建て 間取り変更可!駐車場2台分

| 間取り | 写真 | ||
![]() |
![]() |
||
| その他写真 | |||
|
|
||
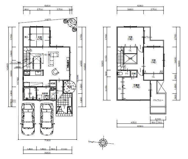
| 種別 | 間取り | 階数 | 建物面積 土地面積 |
築年数 | 価格 |
| 新築戸建 | 4LDK | 2階建 | 103.41㎡ 126.93㎡ |
成約御礼 |
ゆったりガレージなので、大型車2台可!
| 所在地 | 尼崎市大島3丁目 | |||
| 沿線・最寄駅 | 阪神本線 武庫川駅 徒歩 20分 | |||
| 沿線・最寄駅2 | ||||
| 接道状況 | 前面公道6m | |||
| 建物構造 | 木造 | 所在階 | ||
| 駐車場 | 有 | 総戸数 | 1戸 | |
| 土地権利 | 所有権 | 管理費 | ||
| セットバック | 無 | 修繕積立金 | ||
| 都市計画 | 私道負担 | 無 | ||
| 用途地域 | 第一種住居 | 地目 | 宅地 | |
| 建ペイ率/容積率 | 60% / 200% | 地勢 | ||
| 引き渡し | 契約後4カ月 | 現況 | ||
| 持ち分 | 取引態様 | 仲介 | ||
| 小学校 | 中学校 | |||
| 設備 | 居室ペアガラス 床暖房 ミストカワック ストリップ鉄骨階段 | |||
| 備考 | ||||
| 物件コード | E000061 | |||




