伊丹市 鴻池 中古戸建 住宅 駐車場付き 4LDK

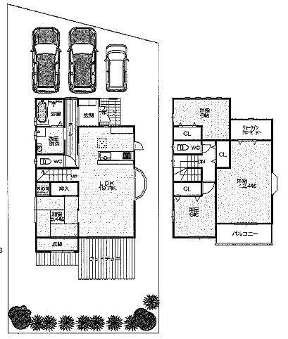
| 間取り | 写真 | ||
![]() |
![]() |
||
| その他写真 | |||
| 種別 | 間取り | 階数 | 建物面積 土地面積 |
築年数 | 価格 |
| 中古戸建 | 4LDK | 2階建 | 128.00㎡ 198.47㎡ |
平成17年10月 | 成約御礼 |
大手ハウスメーカーが施工の一戸建てです。
エコキュートによるオール電化!
| 所在地 | 伊丹市鴻池6丁目 | |||
| 沿線・最寄駅 | 阪急伊丹線 伊丹駅 バス 15分 | |||
| 沿線・最寄駅2 | ||||
| 接道状況 | 北側公道6m | |||
| 建物構造 | 木造 | 所在階 | ||
| 駐車場 | 有 | 総戸数 | ||
| 土地権利 | 所有権 | 管理費 | ||
| セットバック | 無 | 修繕積立金 | ||
| 都市計画 | 市街化区域 | 私道負担 | 無 | |
| 用途地域 | 第二種中高層 | 地目 | 宅地 | |
| 建ペイ率/容積率 | 60% / 200% | 地勢 | 平坦 | |
| 引き渡し | 相談 | 現況 | 居住中 | |
| 持ち分 | 取引態様 | 専任 | ||
| 小学校 | 中学校 | |||
| 設備 | ||||
| 備考 | ||||
| 物件コード | E000040 | |||


