西宮市 中古マンション 甲陽園 3LDK

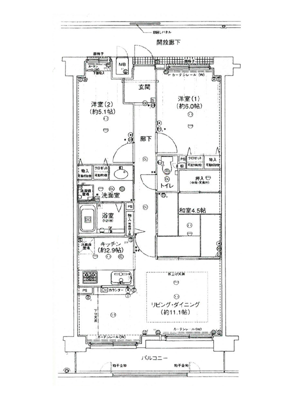
| 間取り | 写真 | ||
![]() |
![]() |
||
| その他写真 | |||
| 種別 | 間取り | 階数 | 建物面積 土地面積 |
築年数 | 価格 |
| 中古マンション | 3LDK | 4階建 | 66.76㎡ |
平成13年9月 | 成約御礼 |
コープまで徒歩2分の好立地です。
| 所在地 | 兵庫県西宮市新甲陽町 | |||
| 沿線・最寄駅 | 阪急甲陽線 甲陽園 徒歩 12分 | |||
| 沿線・最寄駅2 | ||||
| 接道状況 | ||||
| 建物構造 | 鉄筋コンクリート造 | 所在階 | 3階部分 | |
| 駐車場 | 総戸数 | 17戸 | ||
| 土地権利 | 管理費 | 12000円 | ||
| セットバック | 修繕積立金 | 15000円 | ||
| 都市計画 | 私道負担 | |||
| 用途地域 | 地目 | |||
| 建ペイ率/容積率 | / | 地勢 | ||
| 引き渡し | 相談 | 現況 | 空室 | |
| 持ち分 | 取引態様 | 仲介 | ||
| 小学校 | 中学校 | |||
| 設備 | ||||
| 備考 | ||||
| 物件コード | E000089 | |||


