高槻市 中古マンション 3LDK

| 間取り | 写真 | ||
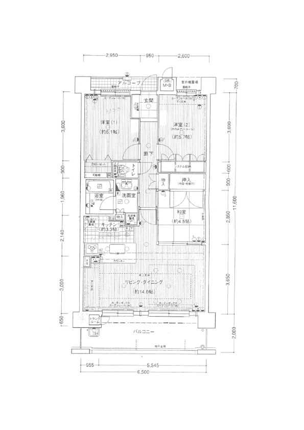
![]() |
![]() |
||
| その他写真 | |||
|
|
|
|
|
|
|
|
| 種別 | 間取り | 階数 | 建物面積 土地面積 |
築年数 | 価格 |
| 中古マンション | 3LDK | 7階建 | 76.02㎡ |
平成15年10月 | 成約御礼 |
室内大変綺麗です。
リビングに床暖房あり。
オートロックあり。
ペット飼育可です!
| 所在地 | 大阪府高槻市千代田町 | |||
| 沿線・最寄駅 | 高槻市駅 徒歩 10分 | |||
| 沿線・最寄駅2 | ||||
| 接道状況 | ||||
| 建物構造 | 鉄筋コンクリート造 | 所在階 | 2階部分 | |
| 駐車場 | 無 | 総戸数 | 34戸 | |
| 土地権利 | 所有権 | 管理費 | 5830円 | |
| セットバック | 修繕積立金 | 11520円 | ||
| 都市計画 | 私道負担 | |||
| 用途地域 | 第二種中高層 | 地目 | ||
| 建ペイ率/容積率 | / | 地勢 | ||
| 引き渡し | 相談 | 現況 | 空室 | |
| 持ち分 | 取引態様 | 一般 | ||
| 小学校 | 中学校 | |||
| 設備 | 電気・ガス・上下水道 | |||
| 備考 | バルコニーにトランクルーム有り |
|||
| 物件コード | E000101 | |||









